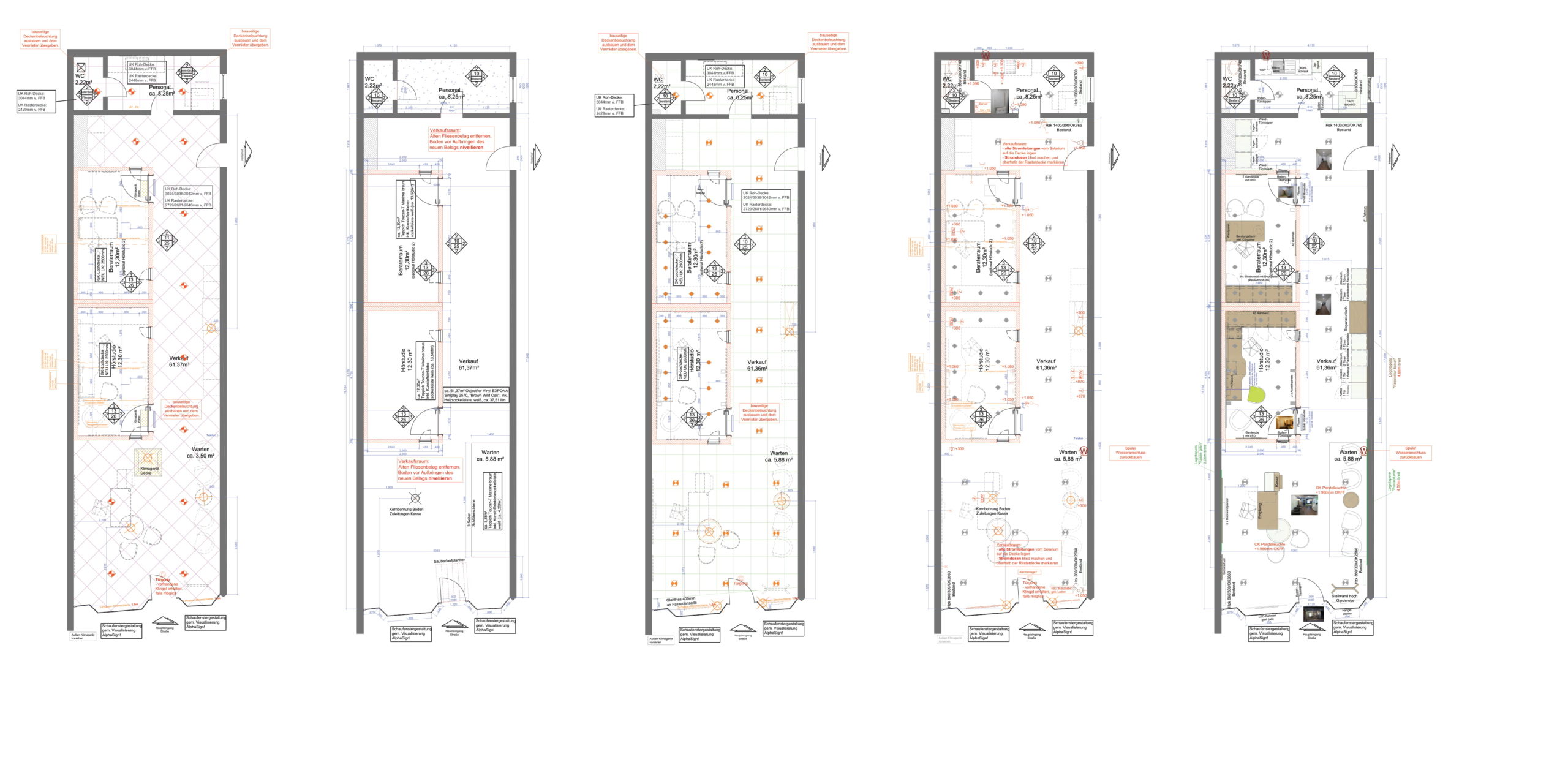
Design Stage
The starting point for any successful project is a discovery meeting with our prospective client, our consultants, and company management find this to be crucial at this early stage to find out exactly what our client is looking to achieve with this important stage in their development.
This, for us is a distinctive point with which Objecta identifies itself and distinguishes us from large, impersonal shop fitting companies. Ultimately, the aim is to ideally meet the individual wishes and ideas of the client as well as the existing concept.
The planning extends to questions about design elements such as colour and form elements, the targeted and efficient selection of materials and their functionality are also important at this early stage. Strategic sales analysis is also required.









